Netzwerk Zirkulär

Leuchtturm - Vision 2030

Ort: Thun- Schweiz
Auftragsart:Eigeninitiative - Direktauftrag
Bauherrschaft: Kocher Minder Architekten
FC Lerchenfeld
Jahr:2022 - 2026
Nutzung:Kollaboration und Sportbautenpilot
Besonderheit:Kreislaufwirtschaft in der Region Thunersee
Zirkuläre Wertschöpfungsketten
Kreislauffähige Bauwirtschaft
Downloads:Projekt Netzwerk Zirkulär
Projekt FC Lerchenfeld Vision 2030

Im Berner Oberland fehlen entscheidende Parameter für den notwendigen Paradigmenwechsel im Umgang mit unserem Ressourcenverbrauch im Bauwesen.

Ein neues, koordinierendes, lokales Gefäss bietet den Raum, um innovative Ansätze zur Implementierung zirkulärer Wertschöpfungsketten im Baugewerbe des Berner Oberlands zu testen und bei Erfolg zu etablieren.

Das Netzwerk Zirkulär pflegt einen offenen Austausch mit bereits etablierten Organisationen und Netzwerken, um bewährte Werkzeuge und Ansätze in der Region Thunersee anzuwenden.
Die Verwaltung, die Bildung und die Wirtschaft in der Region Thunersee arbeiten zusammen und schaffen ökonomie-, sozial- und ökologierelevante Rahmenbedingungen und Werkzeuge für eine erfolgreiche Zirkulärwirtschaft.
 

Am Pilotprojekt der kreislauffähigen Stadionbaute beim FC Lerchenfeld werden die erarbeiteten Rahmenbedingungen und Werkzeuge getestet, gemessen und überprüft.

Machen Sie mit und unterstützen Sie uns!


«Das Netzwerk Zirkulär bietet eine skalierbare Lösung»

fclerchenfeld-schema_re-use.png

«Das Netzwerk Zirkulär schafft die Grundlagen für eine erfolgreiche Kreislaufwirtschaft»

fcl_abend.png
03_img_8108.jpg
04_img_8109.jpg
fcl-erdgeschoss.jpg
fcl-obergeschoss.jpg

Weitere Projekte

nb_cho.jpg
Neubau

Rastplatz Chölfeld - Utzenstorf

ub_hfl.jpg
Umbau

Laborgebäude HAFL - Zollikofen

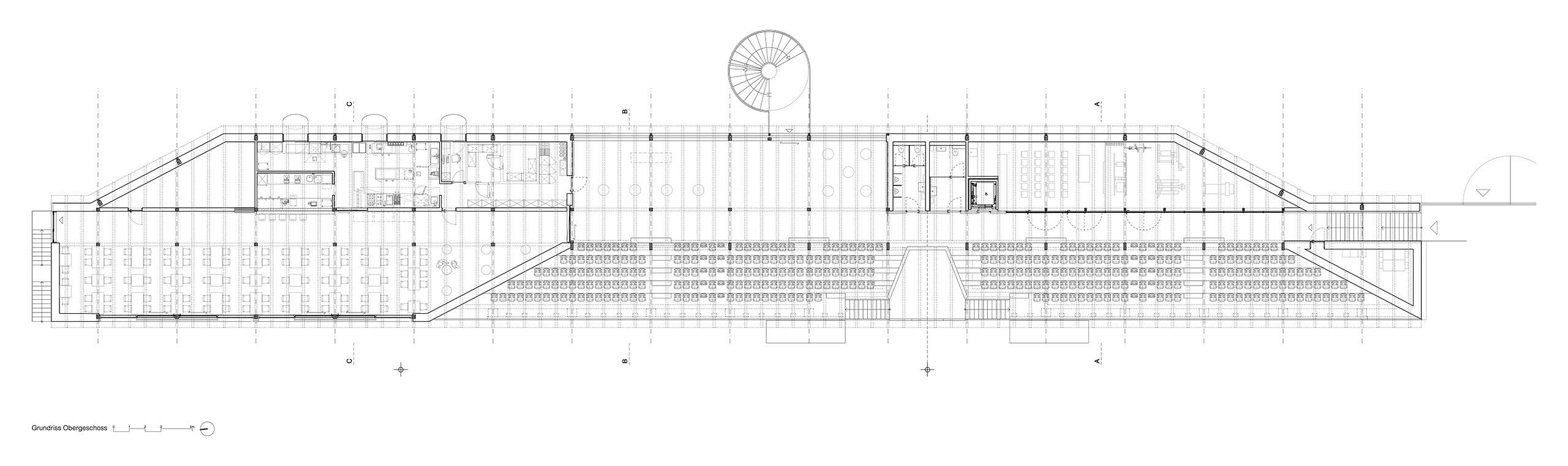
FCL-Obergeschoss

fcl-obergeschoss.jpg