Projektwettbewerb

Stiftung Bernaville - Schwarzenburg

Ort: Schwarzenburg - Schweiz
Auftragsart:Projektwettbewerb im offenen Verfahren
Bauherrschaft: Gemeinde Schwarzenburg
Jahr:2017
Nutzung:Arbeiten und Wohnen
Besonderheit:Lebensraum für Menschen mit Beeinträchtigung,
Etappierbare Gesamtanlage
Download:Projektblatt

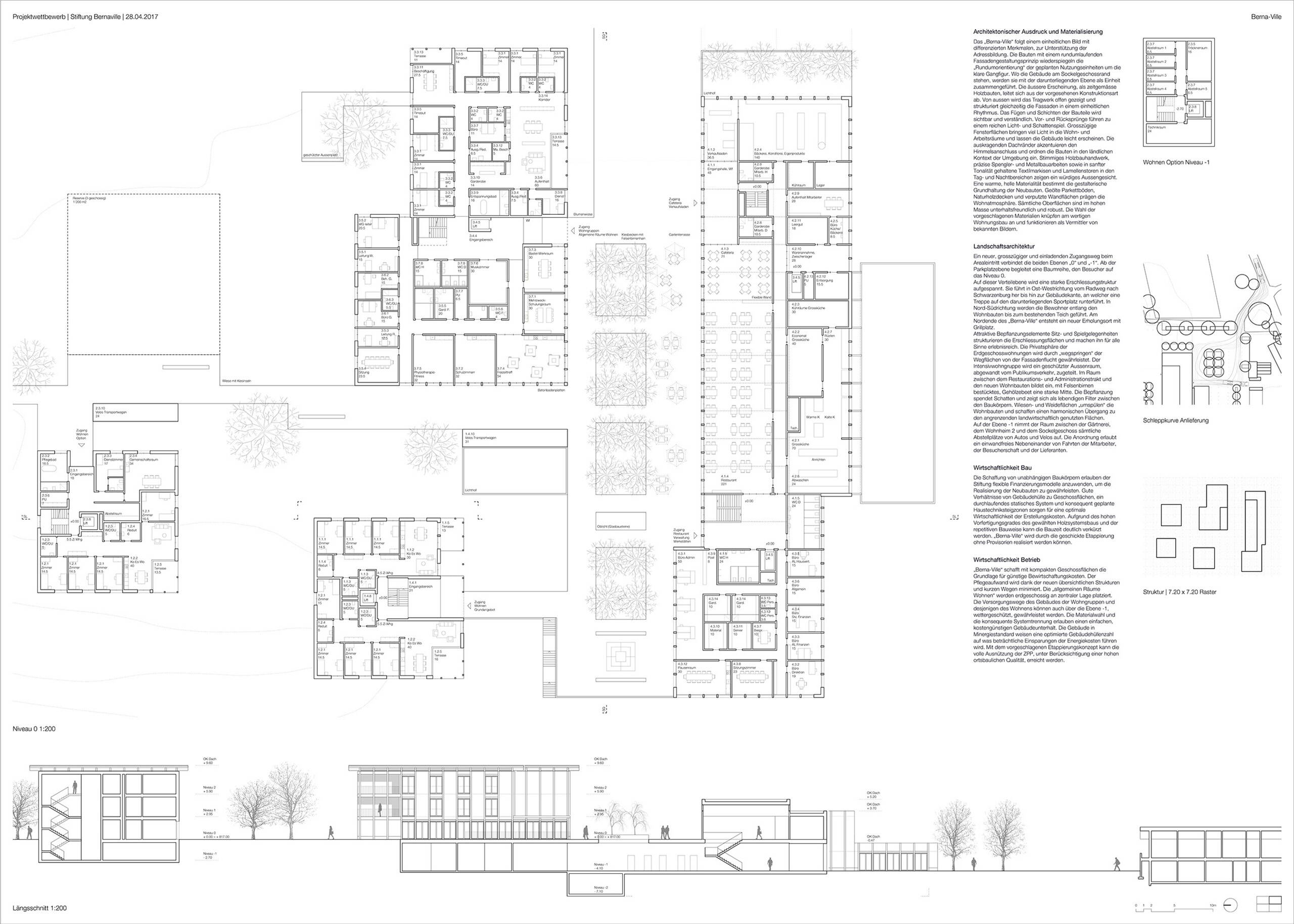
Das „Berna-Ville“ folgt einem einheitlichen Bild mit differenzierten Merkmalen zur Unterstützung der Adressbildung. Die Bauten mit rundumlaufenden Fassadengestaltungsprinzipien widerspiegeln die „Rundumorientierung“ der geplanten Nutzungseinheiten um klare Gangfiguren. Wo die Gebäude auf dem Sockelgeschoss stehen, werden diese neu mit der darunterliegenden Ebene als Einheit zusammengeführt.

Die Etappierungsstrategie als Entwurfsprämisse und als flexibles System. Die äussere Erscheinung zeigt zeitgemässe Holzbauten, welche sich aus der vorgesehenen Konstruktionsart ableiten. Als umlaufende Hülle offen gezeigt, strukturiert das Raster die Fassaden in einem einheitlichen Rhythmus. Das Fügen und Schichten der Bauteile wird sichtbar und verständlich. Vor- und Rücksprünge in d den Flächen führen zu einem reichen Licht- und Schattenspiel an den Volumen. Berna-Ville bietet den Bewohnenden vielfältige Wohnformen und eine optimale Arbeitsumgebungen.


ber_visu_matthias.jpg

«Wohnen und Arbeiten am gleichen Ort. Vielfälltig und abwechslungsreich»

dsc_6279.jpg
dsc_6283.jpg
ber_01.jpg
ber_02.jpg
ber_03.jpg
ber_04.jpg

Weitere Projekte

01_wp_960x960.jpg
Projektwettbewerb

Ersatzneubau Ferienheim “Les Cabris” - Leysin

wp_960x960.jpg
Umbau

Gesamtsanierung toptip - Oberentfelden