Projektwettbewerb

Erweiterung Schulanlage Stämpbach - Boll

Ort: Vechigen/Boll - Schweiz
Auftragsart:Projektwettbewerb im offenen Verfahren
Bauherrschaft: Gemeinde Vechigen
Jahr:2005
Nutzung:Bildung
Besonderheit:Zukunftsweisende Bildungsanstalt,
Etappierbarkeit und Flexibilität,
Bauen mit dem Bestand
Download:Projektblatt

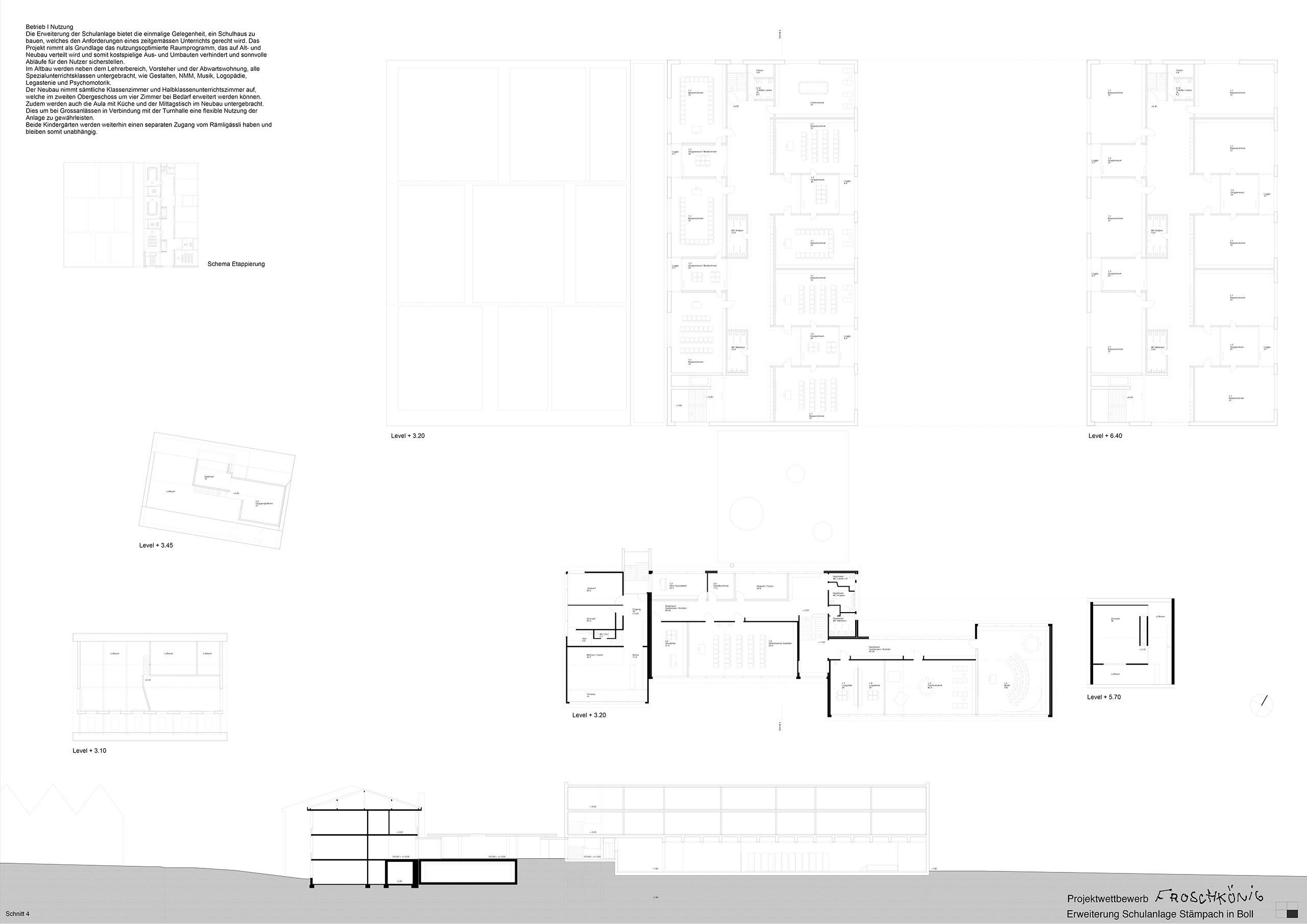
Die bestehende Schulanlage Stämpbach in Boll im Worblental, ist geprägt von einer eher ländlichen Bebauung, welche eingebettet in eine, von Wald und Hügeln gesäumten Peripherie liegt. Der Ort ist eingebettet im Spannungsfeld zwischen der kleinmassstäblichen Umgebung und der steigenden Anforderung öffentlicher Infrastrukturen. Ausgehend von der Analyse reagieren wir mit einem kompakt gestaffelten Gebäude, welches sich gegen den südwestlich gelegenen Hügelfuss abstuft. Die beiden Schulhäuser bilden zusammen eine Einheit. 

Um die Qualität der einzelnen Gebäude und deren Freiräume beizubehalten, wird der neue Körper an der gleichen Position erstellt, wie die abgerissene Turnhalle. Der Komplettersatz verhindert ein Flickwerk der Gesamtanlage und schafft ein harmonisches Ganzes. Die volumetrisch angemessene Grossform passt sich durch präzise Modellierung passgenau in den Ort ein und schafft einen städtebaulichen und nutzungstechnischen Mehrwert für die Bevölkerung.


2_modell.jpg

«Mut zur urbanen Geste im ländlichen Umfeld»

4.jpg
5.jpg
4_plan-1_.jpg
5_plan-2.jpg
6_plan-3.jpg
7_plan-4.jpg

Weitere Projekte

01_wp_960x960.jpg
Projektwettbewerb

Ersatzneubau Ferienheim “Les Cabris” - Leysin

00_wp_dor_960x960.jpg
Neubau

Einfamilienhaus, Dorfstrasse 50 - Thierachern