Projektwettbewerb

Erweiterung Primarschulanlage - Rothenthurm

Ort: Rothenthurm - Schweiz
Auftragsart:Projektwettbewerb im offenen Verfahren
Bauherrschaft: Gemeinde Rothenthurm
Jahr:2017
Nutzung:Bildung
Besonderheit:6. Rang, 5. Preis
Weiterbauen im Ortskern
Download:Projektblatt

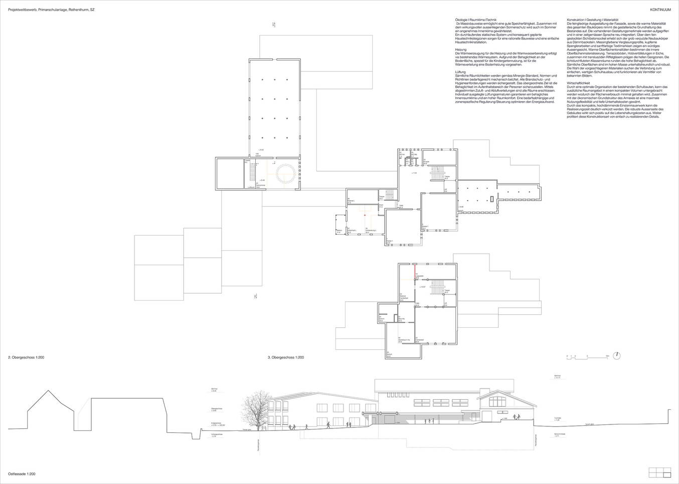
Im Kopfbau der Turnhalle wird neu ein multifunktionales Foyer implementiert, welches als Verbindungselement zur Turnhalle und als Erschliessungsraum für den neuen Schulhauskörper dient.

Ab dem neuen Haupteingang zum Neubautrakt entwickelt sich eine horizontale Erschliessungszone. Neu wird im Erdgeschoss des Erweiterungsbaus das Schulsekretariat untergebracht, was dessen Auffindbarkeit verbessert. Somit wird auch das bestehende Lehrerzimmer im Altbau deutlich vergrössert.

Die neuen Schulraumeinheiten werden in einem nutzungsneutralen Kindergarten-Schulraum-Cluster untergebracht. Einmal gebildete Funktionseinheiten können innerhalb dieses Systems beliebig neu kombiniert und organisiert werden. Das Hauptelement ist die konstruktive Struktur, die einen quadratähnlichen Raum als Klassenzimmer schafft. Sämtliche kleineren Raumeinheiten spannen als direktes Gegenüber eine frei fliessende, alternierende Gangzone auf. Breite Korridore, helle Lernzonen mit Ausblick auf den Letziturm und intime Nischen bilden ein spannungsvolles Raumkontinuum, wo gespielt, kommuniziert und gelernt werden kann.
 


02.jpg

«Wir erweitern das vorhandene städtebauliche Muster»

03.jpg
04.jpg
05.jpg
06.2.jpg
07.jpg
08.jpg
122-pri-1.jpg
122-pri-2.jpg
122-pri-3.jpg
122-pri-4.jpg
122-pri-5.jpg
122-pri-6.jpg

Weitere Projekte

wp_2_960x960.jpg
Projektwettbewerb

Neubau Doppelturnhalle mit Schulräumen - Thun

wp_960x960.jpg
Studie

Neubau Turmhaus - Uebeschi